【开篇】
一缕烟,温软八百年“皇宫”
清晨,第一缕炊烟翻越闽西的层峦叠嶂,在连城县西部缓缓升起。一座沉睡了八百年的客家古村落——培田,正静候着访客的脚步。不同于人们印象中封闭厚重的福建土楼,培田以一种更为舒展、开放的姿态惊艳世人。这里不仅被誉为“福建民居第一村”,更是一座藏在山野深处、规制森严的“民间故宫”。
这缕烟,穿行于“九厅十八井”那森严如铁的飞檐翘角之间,檐下是刚刚推开厚重木门、开始洒扫庭院的客家后人;这缕烟,既是闽西深山里最寻常的市井呼吸,又是中原士族“耕读传家”的精神图腾,见证庙堂之高与江湖之远的温情和解。
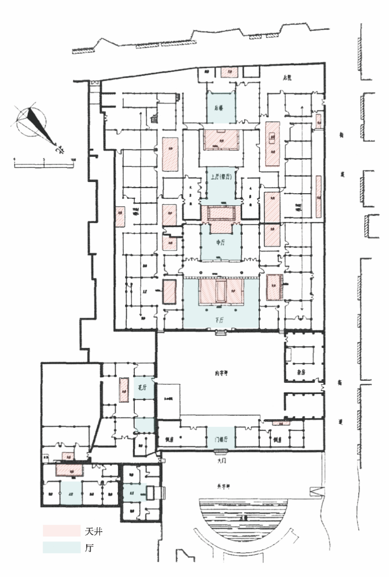
从高空俯瞰,宏观的聚落布局奠定其深沉的基调,两条水圳如玉带般穿村而过,连结起30座华屋、21座宗祠和6处书院;中观的单体结构则是曲中庄重的章节,由一座座“九厅十八井”的大宅作为独立的家族单元,在严整的节拍中收纳起客家人的功名与悲欢 ;而深入微观的局部构造,那一方方天井则是灵动的休止符,作为建筑的“肺叶”,在方寸间承接天光云影,完成了气流与雨水的律动吐纳。它们不是静止的标本,而是活着的历史。培田的先民在这片褶皱山地里,以近乎偏执的礼制,造出了足以媲美皇宫的“高堂华屋”,收纳了世代功名与悲欢。而今,一缕青烟消解了它的冰冷威仪,将其还原为有体温的家。

图片来源于微信公众号:闽西日报
【一部建筑与土地的“生命三部曲”】
第一幕:为家而造——“九厅十八井”里的空间哲学
如果说建筑是凝固的音乐,那么培田的“九厅十八井”,便是一首结构严谨、气势磅礴的交响乐。在培田,“九厅十八井”并非指整个村落,而是指构成村落的核心建筑单体。每一座大型民居都是一个完整的“九厅十八井”。它打破了普通合院的封闭,通过多组厅堂与天井的嵌套,让一座宅邸既能容纳宗族的宏大祭祀,又能让几十户小家庭在各自的单元里互不干扰,初听“九厅十八井”,人们往往会被这庞大的数字所震慑,以为是某种夸张的传说,直到你真正走进村中保存最完好的“大夫第”(继述堂),才会惊觉这竟是真实的生存常态。它不再是我们熟知的封闭四合院,而是在漫长迁徙与定居中,摸索出的终极居住方案。


图片来源于微信公众号:来哲旅行
跨过门槛,十八个天井恰似建筑的“肺叶”,在清晨黄昏从容呼吸。针对闽西的湿热,先民利用高密度天井制造“拔风效应”:热气升腾,凉风吸入,形成零能耗的“天然新风系统”。雨季时,雨水汇聚成帘,既解排水之困,又将“四水归堂”的聚财心理化为听觉艺术。

图片来源于论文:福建省连城县培田古村落传统风貌研究
而支撑起这副庞大骨骼的,则是错落有致的“九厅”。这并非简单的数字堆砌,而是一场关于“礼仪”与“生活”的空间魔术:门楼厅、下厅、中厅、上厅沿中轴线庄严递进,构成了家族祭祀与议事的“庙堂”;而隐于两侧横屋的众多配厅,则充满了柴米油盐的烟火温情。这种“厅”与“井”的精密咬合,让一座大宅既能瞬间容纳百桌宴席的喧嚣,又能让几十户小家庭在各自的单元里独享安宁——这便是“九厅”,既有容纳宗族的宏大,亦有安放个体的细致。
站在“官厅”中轴线上,从门楼、下厅层层递进至最高的祖堂,这种严格的中轴对称布局,分明是儒家礼制在民居中的最高表达,让人仿佛置身于一座微缩的宫殿。装饰却守住灰瓦白墙的素雅。这是在“越级”与“守礼”间的平衡:在山野深处,先民为自己造了一座“精神上的紫禁城”, 也安放了那颗渴望光宗耀祖、耕读传家的心。
第二幕:耕读传家——流淌在水圳与卵石间的文脉


图片来源于微信公众号:老青年凳子
建筑搭建骨架,而生活方式赋予血肉。培田之所以能穿越八百年的时光风雨而不衰,不仅仅因为那些固若金汤的高墙大院,更因为这里运行着一套支撑其精神内核的“软操作系统”——那便是耕读文化与生态智慧的完美咬合。
在培田行走,请务必学会“低头看路”。这里的每一条蜿蜒巷道,每一方静谧庭院,都铺满了鹅卵石。老匠人们以石为墨,在大地上拼贴出“人字纹”、“钱币纹”,以及警醒后人处世谨慎的“碎冰纹”。但如果你只看到了这些吉祥的图案,便低估了先民的深意。这些鹅卵石铺地,实则是一个庞大而精密的“海绵城市系统”。石隙留出呼吸孔,雨水下渗滋养土壤,凹凸肌理保证雨后不积水。这是先民对自然的极致敬畏。
如果路是经络,水便是灵魂。两条“玉带”水圳拥抱村落,构建了罕见的分质供水系统”。族规严定:上游饮用,下游洗涤。这种严苛的卫生自律与重力驱动的循环,实现了数百年前的人水共生。水养肉体,书院则喂饱灵魂。“耕者有其田,读者有其书”,深山中竟生长出20多所书院。从走出的官员到为妇女设立的“容膝居”,教育在此从未是特权,这才是培田最坚固的地基。书香浸润下,冰冷石头拥有了温度,化作“孝悌忠信”的教化,深深嵌入族人血脉。
第三幕:活化与重生——从“空心化”到“我在培田修古厝”

图片来源于微信公众号:来哲旅行
历史的潮水总有涨落。随着现代化浪潮的冲击,和许多中国古村落一样,培田也曾一度陷入“空心化”的落寞。年轻人涌向繁华都市,村外拔地而起钢筋水泥的小洋楼,而古老的“九厅十八井”则日渐斑驳。精美的木雕蒙上了厚厚的灰尘,透气的鹅卵石缝隙长出了杂草。这颗蒙尘的明珠,似乎就要在沉默中慢慢老去,沦为一个仅供凭吊的静态标本。
转机,源于一种观念的觉醒。人们开始痛苦地意识到,培田的价值绝不在于变成一座收门票的“死博物馆”,而在于它依然保留着那份珍贵的、活着的“烟火气”。不同于那些被商业化裹挟的景区,培田选择了一条更艰难却更温情的路——“活态保护”。近年来,一群建筑师、学者、志愿者以及返乡的年轻人,发起了一场“我在培田修古厝”的温柔革命。他们拒绝大拆大建,而是遵循“修旧如旧”的原则,用传统的黄泥、石灰搅拌成浆填补墙缝,请回老匠人用传统技艺修复坍塌的燕尾脊。更重要的是,他们试图恢复培田的“造血功能”:古老的“大夫第”被活化为客家迁徙故事的展示馆,闲置的书院重新流淌出古琴的雅韵,传统连城宣纸作坊再次开张。

图片来源于微信公众号:奋培到村
培田的重生,不仅是文旅的复兴,更是古老智慧对现代生活的一次“逆向输出”。在“空调病”盛行的今天,建筑师们开始重新审视培田天井的通风原理,将其引入现代绿色建筑;在城市内涝频发的当下,规划师们蹲在培田的鹅卵石路面上,惊叹于这古老“海绵城市”的高效;在人情淡漠的都市森林里,人们来到这里,在没有围墙的宗祠里,重新找回了邻里间的温情与信任。
现在的培田,你依然能看到老奶奶在水圳边从容洗菜,依然能看到村民在厅堂里喝茶闲聊。游客不再是闯入者,而是拜访者。这种“主客共享”的模式,让培田没有沦为商业的附庸,而是保持了它作为“家园”的尊严。它静静地矗立在那里,用一种从容的姿态告诉我们:最好的保护,是让历史继续在生活中呼吸。
【结语】
石头不语,却有着穿越时空的回响
夕阳西下,金色的余晖再次给培田镀上了一层圣洁的光晕。 走在村口那座光绪皇帝御赐的“恩荣”牌坊下,回望这座藏在深山里的“民间故宫”。 它没有故宫的皇权浩荡,却多了一份民间的坚韧与温情;它没有苏杭园林的精致矫饰,却多了一份山野的质朴与实用。
培田的故事,不是一个关于“过去”的故事,而是一个关于“未来”的启示录。它告诉我们:最好的建筑,不是征服自然,而是顺应自然;最好的传承,不是将历史封存进玻璃柜,而是让它在当下的生活中继续呼吸。
那些九厅十八井里的穿堂风,那些鹅卵石缝隙里渗下的雨水,那些书院里传承千年的家训,依然在向现代人传递着一种古老而优雅的生活哲学:身在山野,心怀天下;耕读传家,继世绵长。
这,或许就是培田留给我们最宝贵的财富。
—THE END—
资料参考 | 福建省连城县培田古村落传统风貌研究、网络、微信公众号:闽西日报、来哲旅行、老青年凳子、奋培到村